Der Kachelofeneinsatz Diamant H20 des deutschen Traditionsunternehmens LEDA überzeugt mit besten Eigenschaften hinsichtlich Qualität und Brennverhalten sowie Energieeffizienz. Es handelt sich um ein Produkt in Premium-Qualität geeignet für den Betrieb in bestehenden sowie neu errichteten Warmluftkachelöfen mit Nachheizflächen oder Nachheizkästen, für Kachelöfen über 2 Geschosse und Hypokaustenanlagen. Die besonders zurückhaltend und geradlinig designte Front mit klassisch-neutralen Linien macht den Diamant H20 zu einem Kachelofeneinsatz, dessen Optik mit jedem Wohnstil harmoniert. Die optional erhältlichen Anbauleisten für die Frontplatte ermöglichen eine Eignung für viele bestehende Kachelofenbauten und deren Heizeinsatzöffnung. Das besondere Plus des Diamant H20 ist der Anschluss an die externe Frischluftzufuhr.
Der Kachelofeneinsatz Diamant H10 ist mit 2 verschiedenen Nennwärmeleistungsstufen und Rauchrohrstutzendurchmessern sowie als Grundversion und mit Anbauleiste zur Vergrößerung der Frontplatte zur Auswahl bei Kaminprofi24 erhältlich.
Merkmale
|
Nennwärmeleistung |
10 kW |
|
Wirkungsgrad |
≥ 80 % |
|
Energieeffizienzklasse |
A+ |
|
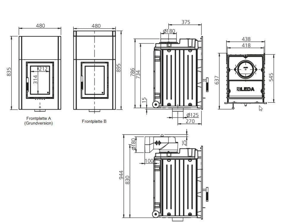
Abmessungen (HxBxT) |
78,6 x 43,8 x 54,4 cm |
|
Frontplatte (HxB) |
83,5 x 48,0 cm / 89,5 x 48,0 cm |
|
Türanschlag |
wechselbar (werkseitig rechts) |
|
Gewicht |
250 kg |
|
Material |
Gusseisen |
|
Rauchrohranschluss (Ø) |
145 mm / 180 mm |
|
Frischluftstutzen (Ø) |
125 mm |
|
Brennstoffe |
Holz (bis 33 cm Scheitlänge) |
Highlights
|
Feuerungswärmeleistung |
28 kW |
|
für Mehrfachbelegung des Schornsteins geeignet |
Ja |
|
Geprüft nach |
DIN EN 13229 |
Daten für den Schornsteinfeger nach DIN EN 13384
|
Abgasmassenstrom (Holz-/Kohlefeuerung) |
11,3 g/s |
|
Abgastemperatur am Rauchrohrstutzen |
605 °C |
|
Erforderlicher Förderdruck |
12 Pa |
|
Verbrennungsluftbedarf |
42 m³/h |
|
Erforderlicher Umluftquerschnitt |
1632 cm² |
|
Erforderlicher Zuluftquerschnitt |
1771 m² |
|
Erforderliche Dämmstoffdicke zur Decke |
100 mm |
|
Erforderliche Dämmstoffdicke zur Anbauwand |
120 mm |
|
Erfüllte Verordnungen |
BImSchV Stufe 1 und 2; München, Schweiz |
Hinweise
Direkter Anschluss an den Schornstein nicht zulässig. Anschluss nur in Verbindung mit Nachheizkasten oder Nachheizfläche möglich.
Weiterführende Informationen
Bedienungsanleitung
Aufstellanleitung
Herstellererklärung
HINWEIS: Sperrgut mit Speditionsversand.
Technische Änderungen und Irrtümer vorbehalten























Rezensionen
Es gibt noch keine Rezensionen.