Die Kaminbausätze des norwegischen Herstellers Nordpeis überzeugen durch moderne Designs im angesagten Skandinavischen Stil, den Einsatz hochwertiger Materialien und große Produktvielfalt sowie mit kinderleichtem Aufbau. Der Korpus des Kaminbausatzes Davos P High wird gefertigt aus Spezialbeton, dem sogenannten Shape Stone Light, dessen hohe Haltbarkeit und Festigkeit durch eine, in den belasteten Bereichen sogar verstärkte, Faserarmierung erlangt wird. Das Material hat eine leichte Speicherwirkung und sorgt so auch nach dem Abbrand für eine angenehme Strahlungswärme, dank welcher ein nachhaltig wohlig-warmes Raumklima geschaffen wird. Bei dem Kaminbausatz Davos P High handelt es sich um einen Bausatz für einen Tunnelkamin mit 3-seitiger Verglasung, was ihn zu einem aufsehenerregenden Raumteiler der ganz besonderen Art macht. Er verfügt über ein hochmodernes, minimalistisches Design mit klaren Linien und großen Panoramascheiben, die aus nahezu jeder Perspektive einen atemberaubenden Blick auf das herrlich prasselnde Kaminfeuer in seinem Inneren freigeben. Der Spezialbeton kann darüber hinaus für eine individuelle Gestaltung mit einer Ofenfarbe in Ihrem Wunschfarbton angestrichen werden. Der Anschluss des in diesem Durchsichtkamin verbauten Kamineinsatz Nordpeis N-29P kann ganz flexibel oben oder hinten vorgenommen werden.
Der Kaminbausatz Davos P ist als Basismodell oder als Ausführung mit Powerstone Wärmespeicher für eine verlängerte Wärmedauer bei Kaminprofi24 erhältlich.
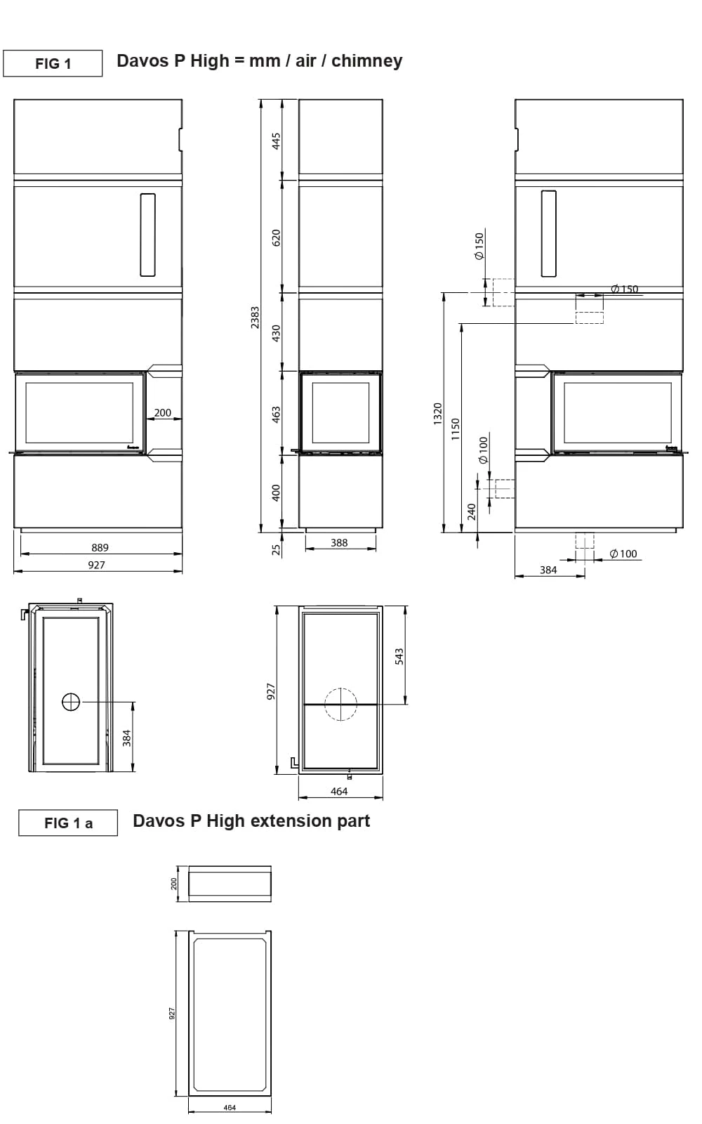
Merkmale
| Nennwärmeleistung | 10,5 kW |
| Abmessungen (HxBxT) | 238,3 x 92,7 x 46,4 cm |
| Gewicht | 453 kg |
| Scheiben | gerade |
| Höhe Feuerraumtür | 46,3 cm |
| Breite Feuerraumtür (breite Scheiben/schmale Scheibe) | ca. 72,7 cm / 38,8 cm |
| Material | Spezialbeton |
| Rauchrohranschluss (Ø) | 150 mm |
| Brennstoffe | Holz (bis 50 cm Scheitlänge) |
Highlights
Mit Kamineinsatz Nordpeis N-29P
3-seitig doppelt verglaste Sichtscheiben
Spezielle strahlungswärmereflektierende Beschichtung der Frontscheibe für saubere Scheiben
Großer Feuerraum
Dezenter Griff
Türfunktion klappbar, selbstschließend
Hervorragendes Abbrandverhalten und Flammenbild durch modernste Feuerungstechnik
Besonders leichter Aufbau in wenigen Arbeitsschritten
Vielfältige Gestaltungsmöglichkeiten durch mit Ofenfarbe in beliebigem Farbton anstreichbarem Korpus
Erfüllt alle Anforderungen 1. und 2. BImSchV (zusätzlicher Feinstaubfilter nicht erforderlich)
Lieferung inklusive Lüftungsgitter in weiß (lackierbar), Acrylkleber, und Reparaturset zur Ausbesserung kleiner Mängel bedingt durch Montage oder Transport
Wahlweise als Basismodell oder mit Powerstone Wärmespeicher für eine verlängerte Wärmedauer
Externe Frischluftzufuhr (optional, mit Frischluftstutzen, sh. Zubehör)
Technische Details
| Wirkungsgrad | 78 % |
| Für 24h Dauerbetrieb geeignet | ja |
| Frischluftstutzen (Ø) | 100 mm |
| Rauchrohrstutzen |
|
| Höhe bis Rohrmitte | 132 cm (Abgang hinten) |
| Frischluftstutzen |
|
| Höhe bis Rohrmitte | 24 cm (Abgang hinten) |
| Abstand zu brennbaren Materialien |
|
| Seitlich | 100 cm |
| Hinten | 0 cm |
| Vorn (Strahlungsbereich der Scheibe) | 65 cm |
Daten für den Schornsteinfeger nach DIN EN 13384
| Verbrennungsemissionen (bei 13 % O2) |
|
| Kohlenmonoxid (CO) | 0,07 % Vol |
| Stickstoffoxid (NOx) | 108 mg/m³ |
| Organischer gasförmiger Kohlenstoff (OGC) | 70 mg/m³ |
| Feinstaub (PM) | 28 mg/m³ |
| Abgastemperatur | 311 °C |
| Erforderlicher Förderdruck | 0,12 mbar |
| BImSchV Stufe 1 und 2 | Erfüllt |
Hinweise
Beim Material Beton kann es produktionsbedingt zu Abweichungen in Farbe und Oberflächenbeschaffenheit (Poren) kommen. Die genannten Charakteristika unterstreichen den individuellen Charakter des Kamines und stellen keine Basis für eine Reklamation der Kaminbausätze dar.
Weiterführende Informationen
Montageanleitung
Leistungserklärung
HINWEIS: Sperrgut mit Speditionsversand.
Technische Änderungen und Irrtümer vorbehalten



















Rezensionen
Es gibt noch keine Rezensionen.